物件を探す

【商談中】 家も庭も広々としています。

【売買】No.189 身延町清子

種別 買う:中古一戸建て
価格 250万円
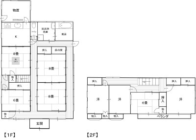
詳細 No.189外観 No.189 外観 No.189 No.189 間取り ■敷地:323.55㎡
■建物:のべ182.16㎡
■構造:木造 
■間取:別添のとおり
■公共交通:駅まで3.8㎞
■電気:引込済み  
■ガス:プロパンガス
■風呂:灯油
■水道:上水道
■下水道:浄化槽
■トイレ:水洗洋式
■駐車場:4台

※物件詳細は【身延町空き家バンク利用者登録】をして頂いた後でのご案内となります。
関連リンク 身延町役場HP【空き家・土地バンク】
ご利用の流れと【身延町空き家バンク利用登録申込書類】のダウンロードはこちら…
お問い合わせ先 身延町 企画政策課
山梨県南巨摩郡身延町切石350
TEL: 0556-42-4801 FAX: 0556-42-2127
HP: https://www.town.minobu.lg.jp

地図

プロに相談する

物件を検索する